



Lot 51 Land With Planning For Three DwellingsAuction Date:
30th October 2025
Land Rear Of The Dingle, Crowborough Hill, Crowborough, East Sussex, TN6 2HJ
A freehold parcel of land located in an established residential area of Crowborough within easy reach of Crowborough railway station and a number of various local amenities.
Planning
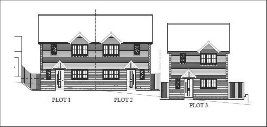
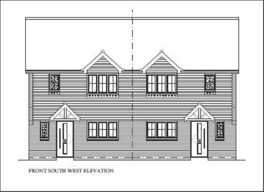
Planning Permission has been granted by Wealden District Council under reference: WD/2025/0894/F dated 2nd October 2025 for the proposed erection of 1no. pair of semi-detached dwellings and 1no. detached dwelling (net increase of 3no. dwellings (Class C3)), subject to conditions.
A copy of the Planning Consent and proposed plans can be downloaded from the Local Planning Authority website: wealden.gov.uk Tel: 01323 443322.
Proposed Accommodation
Plot 1 (Semi-Detached)
Ground Floor
Entrance hall, downstairs W.C., open plan kitchen/living room/dining room, utility room.
First Floor
Landing, bathroom with W.C., two bedrooms and further bedroom with en-suite.
Plot 2 (Semi-Detached)
Ground Floor
Entrance hall, downstairs W.C., open plan kitchen/living room/dining room, utility room.
First Floor
Landing, bathroom with W.C., two bedrooms and further bedroom with en-suite.
Plot 3 (Detached)
Ground Floor
Entrance hall, downstairs W.C., kitchen, living room/dining room.
First Floor
Landing, bathroom with W.C., two bedrooms and further bedroom with en-suite.
Freehold with Vacant Possession
There is an addendum available to be read
in conjunction with the legal documentation.
Important
All lots are sold subject to the Common Auction Conditions and Special Conditions of Sale (unless varied by the Sellers Solicitors), together with the Addendum, which will be available on Auction Day.
* Price Information
Guides are provided as an indication of each Seller’s minimum expectation. They are not necessarily figures at which a property will sell for and may change at any time prior to Auction. Unless stated otherwise, each Lot will be offered subject to a reserve (a figure below which the Auctioneer cannot sell the Lot during the Auction).
We expect the reserve will be set within the guide range or no more than 10% above a single figure guide. Please check our website regularly at cliveemson.co.uk, or contact us on 01622 608400, in order to stay fully informed with the up-to-date information.
Additional Fees
An Administration fee and Other non-optional fees may also be payable in addition to the bid price. All lots are offered subject to the Common Auction Conditions and Special Conditions of Sale or Revised Special Conditions of Sale (as applicable) and may include the repayment of search and other fees and or costs payable by the buyer.
All buyers are advised to inspect all available legal documentation prior to bidding and will be deemed to fully understand what they may be liable for if they are successful in purchasing. This should also include Stamp Duty, Land Registry fees and VAT which may become payable on completion in line with any property transaction, whether it is by auction or private treaty. If, as a buyer, you are in doubt you should seek advice from your own professional advisors. For more information on fees please go to Buyers Fees









