











Lot 98 Freehold Convenience Store Investment And Vacant Seven-Bedroom House For RefurbishmentAuction Date:
30th October 2025
Post Office House and Supply Stores, Badsell Road, Five Oak Green, Tonbridge, Kent, TN12 6RB
Currently let at £22,230 per annum
Substantial two and three storey buildings overlooking the green, located in the very heart of the popular village of Five Oak Green, conveniently located within easy reach of Tonbridge.
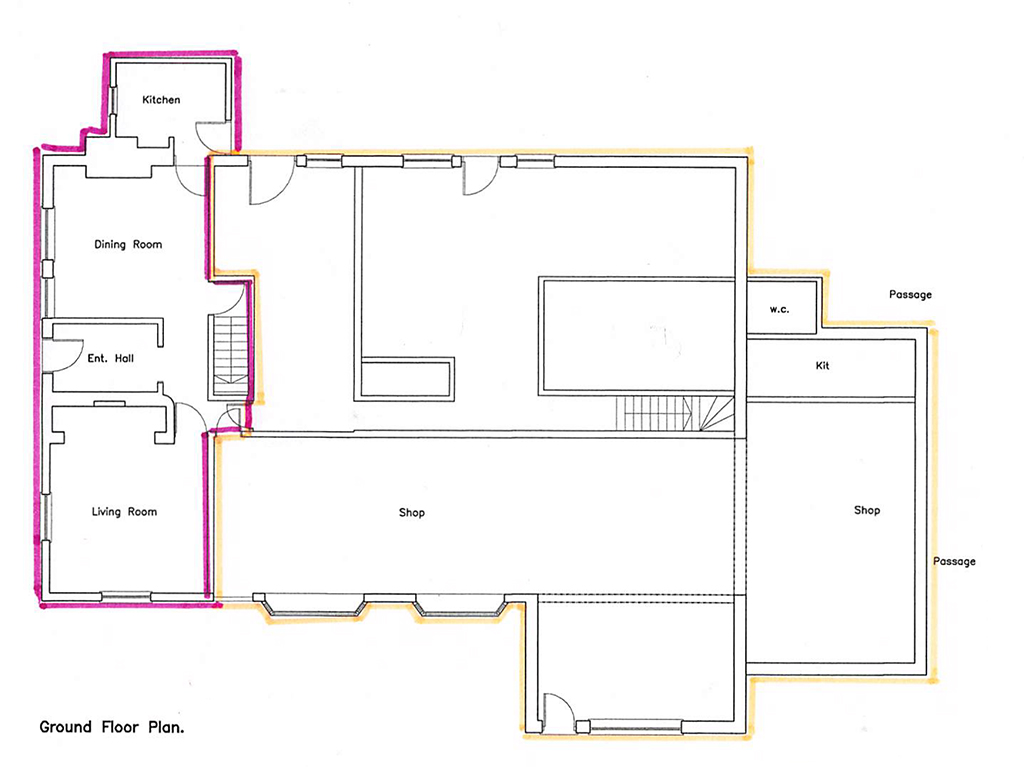
Comprising a One Stop convenience store and Post Office at ground floor level and a vacant 6/7 bedroom house on the ground and first floors, together with a maisonette sold on a long lease.
OneStop Convenience Store and Post Office
Retail area, storeroom, kitchen and W.C.
EPC Rating
D (84). Total Floor Area 150 sq.m.
Tenancy
Let on a Commercial Lease, from 1st September 2025 to and including 1st September 2044, at a current rental of £22,230 per annum with rent reviews in September 2029 and every five yearly thereafter. There are no breaks and at review the rent increases to the higher of open market value, or in line with RPI (Retail Price Index).
Post Office House - Vacant
Ground Floor
Entrance hall, dining room, living room and kitchen.
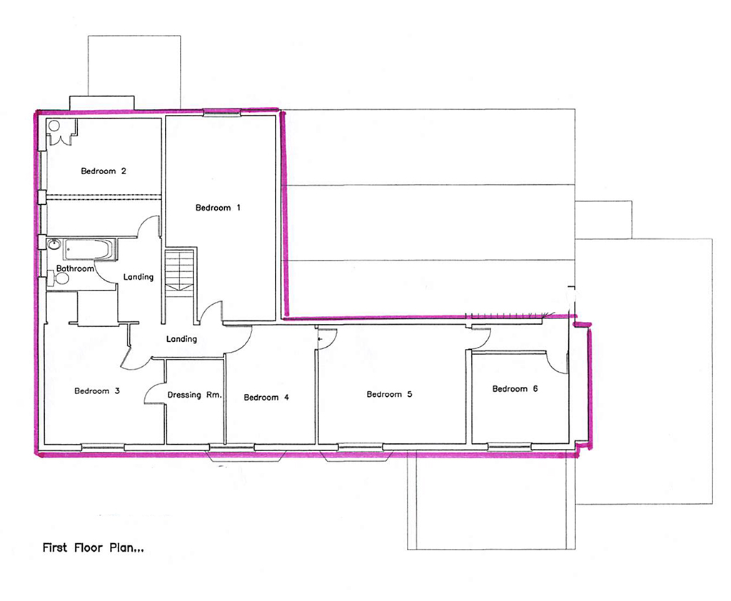
First Floor
Landing, six bedrooms, plus dressing room/seventh bedroom and bathroom with W.C.
Outside
Gardens to rear.
EPC Rating E
Council Tax Band D
Orchard Flat
Tenure
Sold on a 170-year lease from 1974 at a peppercorn ground rental.
Site Measurements
The site extends to 0.06 hectares (0.14 acres).
Freehold with Part Vacant Possession
There is an addendum available to be read
in conjunction with the legal documentation.
Further Information
Chris Milne/Isla Wild
on 01622 608400
Viewings
- There are no future viewings currently available, please contact our office on 0345 8500333
The viewing times for the lot are listed below, please make sure you book into the viewing either through the website or phoning 0345 8500333, as on occasions viewing times change or may be cancelled.
Book a new viewing or cancel an existing viewing for this property before 5pm the day before.
Legal Documents
Sign In to view legal documents for this property
- Special Conditions
- Office Copy Entries
- Lease(s)
- Local Authority Search
- Environmental Search
- Drainage Search
- EPC
- Other Documentation
- Online Auctions Buying Guide
Service Providers
Click here if you are looking for a solicitor, insurance company, finance company or a property related organisation or firm
Local Information
Discover transportation routes, schools and local amenities and attractions within this area. You’ll also find other useful information including average broadband speeds and much more…
Important
All lots are sold subject to the Common Auction Conditions and Special Conditions of Sale (unless varied by the Sellers Solicitors), together with the Addendum, which will be available on Auction Day.
* Price Information
Guides are provided as an indication of each Seller’s minimum expectation. They are not necessarily figures at which a property will sell for and may change at any time prior to Auction. Unless stated otherwise, each Lot will be offered subject to a reserve (a figure below which the Auctioneer cannot sell the Lot during the Auction).
We expect the reserve will be set within the guide range or no more than 10% above a single figure guide. Please check our website regularly at cliveemson.co.uk, or contact us on 01622 608400, in order to stay fully informed with the up-to-date information.
Additional Fees
An Administration fee and Other non-optional fees may also be payable in addition to the bid price. All lots are offered subject to the Common Auction Conditions and Special Conditions of Sale or Revised Special Conditions of Sale (as applicable) and may include the repayment of search and other fees and or costs payable by the buyer.
All buyers are advised to inspect all available legal documentation prior to bidding and will be deemed to fully understand what they may be liable for if they are successful in purchasing. This should also include Stamp Duty, Land Registry fees and VAT which may become payable on completion in line with any property transaction, whether it is by auction or private treaty. If, as a buyer, you are in doubt you should seek advice from your own professional advisors. For more information on fees please go to Buyers Fees









