










Lot 153 Office With Planning For Three HousesAuction Date:
11th December 2025
Bridge House, Basted, Borough Green, Sevenoaks, Kent, TN15 8PS

A detached former office building located in the Basted Valley, an area of outstanding natural beauty, a short distance from the local pub and within easy reach of Borough Green railway station, Sevenoaks and the M26.
The property has been granted Planning Consent for conversion into three self-contained houses and a copy of the consents will be available for inspection within the legal documentation.
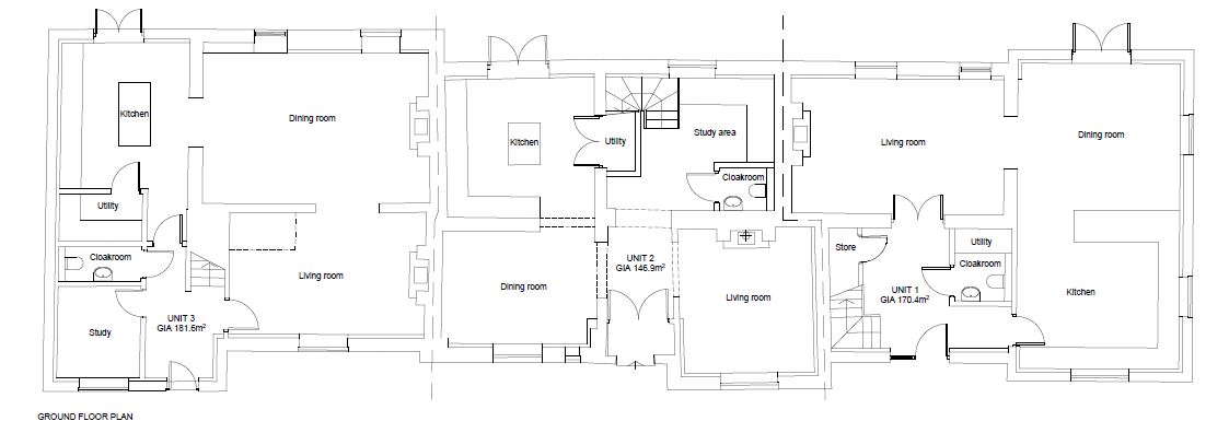
Proposed Accommodation
Unit 1
Ground Floor
Living room, dining room, kitchen, utility room, study and cloakroom with W.C.
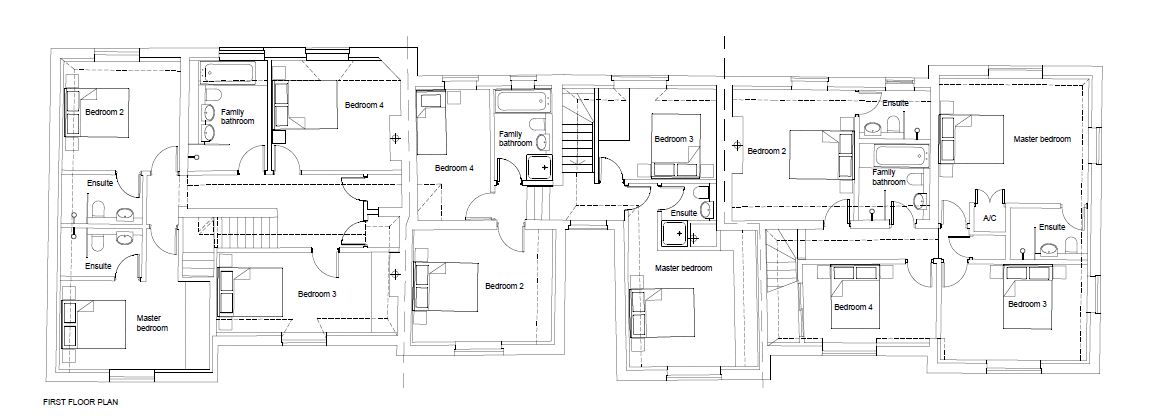
First Floor
Four bedrooms (two with en-suite facilities) and bathroom with W.C.
Unit 2
Ground Floor
Living room, dining room, kitchen, utility room, study area and cloakroom with W.C.
First Floor
Main bedroom with en-suite, three further bedrooms and bathroom with W.C.
Unit 3
Ground Floor
Living room, dining room, kitchen, utility room, and cloakroom with W.C.
First Floor
Four bedrooms (two with en-suite facilities) and bathroom with W.C.
EPC Rating
D (95). Total Floor Area 504 sq.m.
Council Tax Band H
Auctioneers Note
We have been informed by the sellers the Planning Consent is still in place and confirmation will be available for inspection within the legal documentation available to download from the Clive Emson website.
Site Measurements
The site extends to 0.19 hectares (0.46 acres).
Local Planning Authority
Sevenoaks District Council. Tel: 01732 227000. Website: sevenoaks.gov.uk.
Freehold with Vacant Possession
Further Information
Chris Milne/Isla Wild
on 01622 608400
Viewings
- Mon 24th November
08:30 - Thu 27th November
15:45 - Mon 1st December
08:30 - Thu 4th December
15:45 - Mon 8th December
08:30
The viewing times for the lot are listed below, please make sure you book into the viewing either through the website or phoning 0345 8500333, as on occasions viewing times change or may be cancelled.
Book a new viewing or cancel an existing viewing for this property before 5pm the day before.
Service Providers
Click here if you are looking for a solicitor, insurance company, finance company or a property related organisation or firm
Local Information
Discover transportation routes, schools and local amenities and attractions within this area. You’ll also find other useful information including average broadband speeds and much more…
Important
All lots are sold subject to the Common Auction Conditions and Special Conditions of Sale (unless varied by the Sellers Solicitors), together with the Addendum, which will be available on Auction Day.
* Price Information
Guides are provided as an indication of each Seller’s minimum expectation. They are not necessarily figures at which a property will sell for and may change at any time prior to Auction. Unless stated otherwise, each Lot will be offered subject to a reserve (a figure below which the Auctioneer cannot sell the Lot during the Auction).
We expect the reserve will be set within the guide range or no more than 10% above a single figure guide. Please check our website regularly at cliveemson.co.uk, or contact us on 01622 608400, in order to stay fully informed with the up-to-date information.
Additional Fees
An Administration fee and Other non-optional fees may also be payable in addition to the bid price. All lots are offered subject to the Common Auction Conditions and Special Conditions of Sale or Revised Special Conditions of Sale (as applicable) and may include the repayment of search and other fees and or costs payable by the buyer.
All buyers are advised to inspect all available legal documentation prior to bidding and will be deemed to fully understand what they may be liable for if they are successful in purchasing. This should also include Stamp Duty, Land Registry fees and VAT which may become payable on completion in line with any property transaction, whether it is by auction or private treaty. If, as a buyer, you are in doubt you should seek advice from your own professional advisors. For more information on fees please go to Buyers Fees









