







Lot 76 Industrial/office Unit On A Large Plot With PotentialAuction Date:
11th February 2026
Communication Centre, Par Moor Road, Par, Cornwall, PL24 2SQ
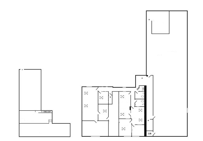
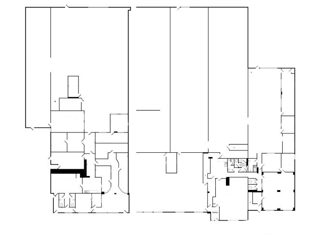
A rare opportunity to acquire a large versatile commercial property comprising offices, warehouses, and storage spaces. There is parking to the front and a large area of hardstanding at the rear.
Situated on Par Moor Road, an established trading position, the site is located approximately three miles east from the town of St Austell, and the mainline train station at Par is under five minutes' drive away.
The site may offer future potential for a range of alternative uses including residential development, subject to all necessary consents being obtainable.
Net Internal Area
Approximately 2,283 sq.m. (24,576 sq.ft.)
EPC Ratings
D (88). Total Floor Area 104 sq.m.
E (125). Total Floor Area 322 sq.m.
Site Measurements
The site extends to approximately 0.54 hectares (1.34 acres).
Local Planning Authority
Cornwall Council. Tel: 0300 1234 151. Website: cornwall.gov.uk.
Viewing
Strictly by prior arrangement with the auctioneers.
Further Information
James Lofthouse/Steve Appleby
on 01392 366555
Viewings
- Tue 27th January
12:30 - Thu 29th January
13:00 - Tue 3rd February
12:30 - Thu 5th February
13:00 - Tue 10th February
15:00
The viewing times for the lot are listed below, please make sure you book into the viewing either through the website or phoning 0345 8500333, as on occasions viewing times change or may be cancelled.
Book a new viewing or cancel an existing viewing for this property before 5pm the day before.
Service Providers
Click here if you are looking for a solicitor, insurance company, finance company or a property related organisation or firm
Local Information
Discover transportation routes, schools and local amenities and attractions within this area. You’ll also find other useful information including average broadband speeds and much more…
Important
All lots are sold subject to the Common Auction Conditions and Special Conditions of Sale (unless varied by the Sellers Solicitors), together with the Addendum, which will be available on Auction Day.
* Price Information
Guides are provided as an indication of each Seller’s minimum expectation. They are not necessarily figures at which a property will sell for and may change at any time prior to Auction. Unless stated otherwise, each Lot will be offered subject to a reserve (a figure below which the Auctioneer cannot sell the Lot during the Auction).
We expect the reserve will be set within the guide range or no more than 10% above a single figure guide. Please check our website regularly at cliveemson.co.uk, or contact us on 01622 608400, in order to stay fully informed with the up-to-date information.
Additional Fees
An Administration fee and Other non-optional fees may also be payable in addition to the bid price. All lots are offered subject to the Common Auction Conditions and Special Conditions of Sale or Revised Special Conditions of Sale (as applicable) and may include the repayment of search and other fees and or costs payable by the buyer.
All buyers are advised to inspect all available legal documentation prior to bidding and will be deemed to fully understand what they may be liable for if they are successful in purchasing. This should also include Stamp Duty, Land Registry fees and VAT which may become payable on completion in line with any property transaction, whether it is by auction or private treaty. If, as a buyer, you are in doubt you should seek advice from your own professional advisors. For more information on fees please go to Buyers Fees









