
















Lot 70 Substantial Vacant Commercial Premises With PotentialAuction Date:
7th May 2026
302 Canterbury Street, Gillingham, Kent, ME7 5JP
Key Features
A vacant former warehouse/workshop located in a predominantly residential area on the outskirts of Gillingham town centre and close to the Medway Maritime Hospital. The property provides a mixture of warehouse/storage areas, office space and a further area, which we have been informed by the seller, was previously used for residential accommodation.
The property may offer potential for a variety of schemes, subject to all necessary consents being obtainable. We have been informed by the seller indicative plans have been prepared for a scheme of twenty-one one-bedroom flats with accommodation over three floors, copies of these plans will be available to download as part of the legal documentation from the auctioneer's website. No planning application has been submitted and interested applicants are advised to rely on their own investigations.
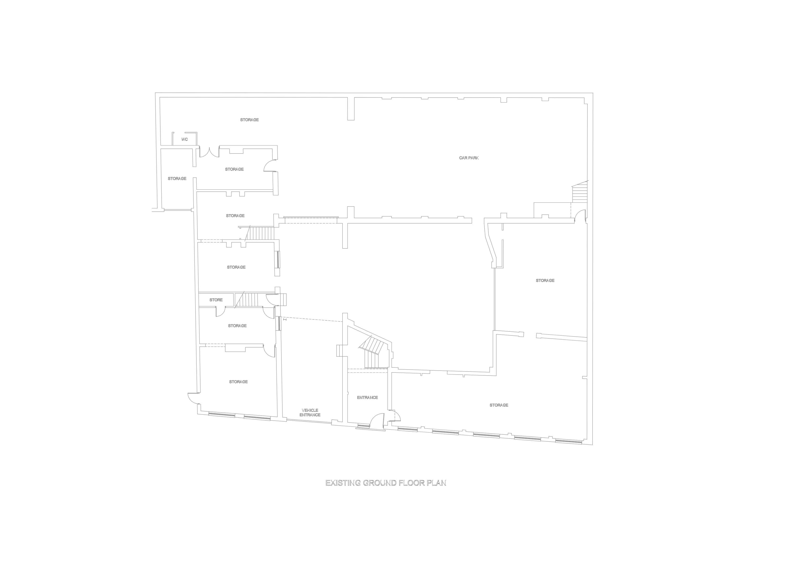
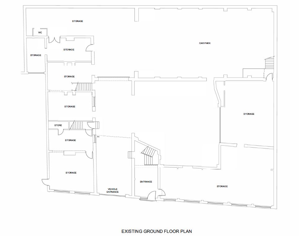
Ground Floor
Several warehouse/workshop areas with several store rooms. Undercroft parking with access via a roller door on Canterbury Street.
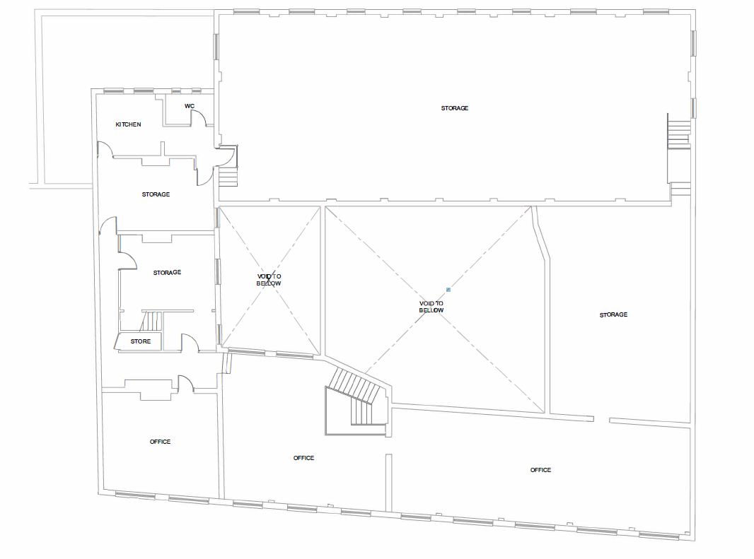
First Floor
Offices, further warehouse/workshop areas, kitchen and further store rooms.
EPC Rating
C (74). Total Floor Area 1,366 sq.m. (14,703.5 sq.ft.)
Local Planning Authority
Medway Council. Tel: 01634 602736. website: medway.gov.uk.
Freehold with Vacant Possession
There is an addendum available to be read
in conjunction with the legal documentation.
Further Information
Jon Rimmer/Chris Milne
on 01622 608400
Viewings
- There are no future viewings currently available, please contact our office on 0345 8500333
The viewing times for the lot are listed below, please make sure you book into the viewing either through the website or phoning 0345 8500333, as on occasions viewing times change or may be cancelled.
Book a new viewing or cancel an existing viewing for this property before 5pm the day before.
Legal Documents
Sign In to view legal documents for this property
- Special Conditions
- Office Copy Entries
- Local Authority Search
- Drainage Search
- Plans
- EPC
- Other Documentation
- Online Auctions Buying Guide
Service Providers
Click here if you are looking for a solicitor, insurance company, finance company or a property related organisation or firm
Local Information
Discover transportation routes, schools and local amenities and attractions within this area. You’ll also find other useful information including average broadband speeds and much more…
Important
All lots are sold subject to the Common Auction Conditions and Special Conditions of Sale (unless varied by the Sellers Solicitors), together with the Addendum, which will be available on Auction Day.
* Price Information
Guides are provided as an indication of each Seller’s minimum expectation. They are not necessarily figures at which a property will sell for and may change at any time prior to Auction. Unless stated otherwise, each Lot will be offered subject to a reserve (a figure below which the Auctioneer cannot sell the Lot during the Auction).
We expect the reserve will be set within the guide range or no more than 10% above a single figure guide. Please check our website regularly at cliveemson.co.uk, or contact us on 01622 608400, in order to stay fully informed with the up-to-date information.
Additional Fees
An Administration fee and Other non-optional fees may also be payable in addition to the bid price. All lots are offered subject to the Common Auction Conditions and Special Conditions of Sale or Revised Special Conditions of Sale (as applicable) and may include the repayment of search and other fees and or costs payable by the buyer.
All buyers are advised to inspect all available legal documentation prior to bidding and will be deemed to fully understand what they may be liable for if they are successful in purchasing. This should also include Stamp Duty, Land Registry fees and VAT which may become payable on completion in line with any property transaction, whether it is by auction or private treaty. If, as a buyer, you are in doubt you should seek advice from your own professional advisors. For more information on fees please go to Buyers Fees









