











Lot 133 Former Methodist Church With Planning For Residential DevelopmentAuction Date:
7th May 2026
Carnkie Methodist Church, Carnkie, Redruth, Cornwall, TR16 6SA
Situated in the middle of the popular and sought after village of Carnkie is this detached former Methodist Church sitting on decent sized grounds with the benefit of Planning Permission for three residential dwellings (all with allocated parking spaces and communal gardens).
The property, although currently run-down, exudes charm and character and offers versatility towards its end use utilising the current Planning Permission. Alternatively, some may envisage one large detached residence, subject to all necessary consents being obtainable.
Planning
Planning Permission has been granted by Cornwall Council, under ref: PA23/10144, dated 20th December 2024, for the conversion of former Methodist church to residential use as 3no dwellings including operational works, subject to conditions.
A copy of the Planning Consent and accompanying documents may be downloaded from the Local Planning Authority website, cornwall.gov.uk. Tel: 0300 1234 151.
Existing Accommodation
Front entrance along with two side entrances. Kitchen, W.C., meeting room and sanctuary.
Outside
The property enjoys a good size lawned garden with off road parking.
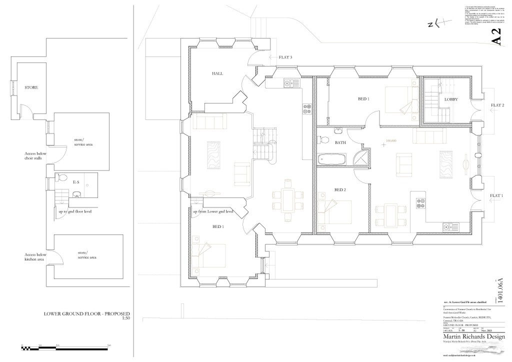
Proposed Accommodation
Unit 1
Ground Floor
Open-plan kitchen/living/dining room, two bedrooms and bathroom.
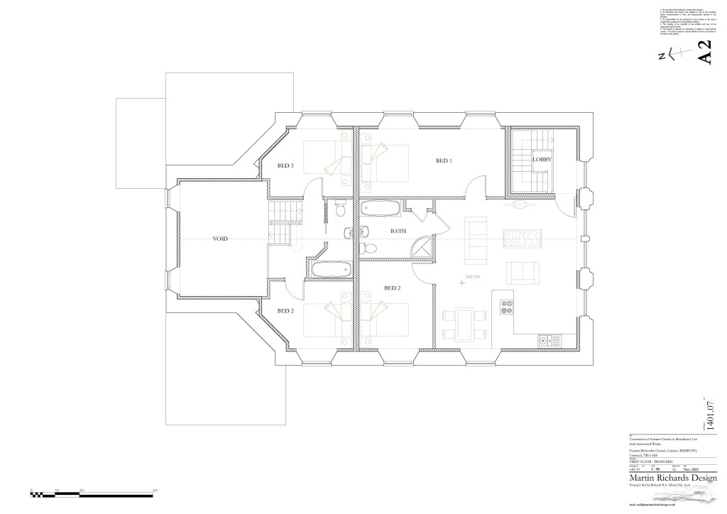
Unit 3
Ground Floor
Entrance hall, kitchen/dining room, living room and bedroom.
First Floor
Two bedrooms and bathroom.
Unit 2
First Floor
Entrance lobby, open-plan kitchen/living/dining room, two bedrooms and bathroom.
Outside
Site Measurements
The site extends to 0.1 hectares (0.24 acres).
Auctioneer's Note
A copy of the Mining Report will be included within the legal documentation, available to download from the Clive Emson website.
Freehold with Vacant Possession
Further Information
Katie Semmens/Steve Appleby
on 01392 366555
Viewings
- Mon 20th April
14:15 - Thu 23rd April
09:30 - Mon 27th April
15:15 - Wed 29th April
14:15 - Wed 6th May
14:15
The viewing times for the lot are listed below, please make sure you book into the viewing either through the website or phoning 0345 8500333, as on occasions viewing times change or may be cancelled.
Book a new viewing or cancel an existing viewing for this property before 5pm the day before.
Service Providers
Click here if you are looking for a solicitor, insurance company, finance company or a property related organisation or firm
Local Information
Discover transportation routes, schools and local amenities and attractions within this area. You’ll also find other useful information including average broadband speeds and much more…
Important
All lots are sold subject to the Common Auction Conditions and Special Conditions of Sale (unless varied by the Sellers Solicitors), together with the Addendum, which will be available on Auction Day.
* Price Information
Guides are provided as an indication of each Seller’s minimum expectation. They are not necessarily figures at which a property will sell for and may change at any time prior to Auction. Unless stated otherwise, each Lot will be offered subject to a reserve (a figure below which the Auctioneer cannot sell the Lot during the Auction).
We expect the reserve will be set within the guide range or no more than 10% above a single figure guide. Please check our website regularly at cliveemson.co.uk, or contact us on 01622 608400, in order to stay fully informed with the up-to-date information.
Additional Fees
An Administration fee and Other non-optional fees may also be payable in addition to the bid price. All lots are offered subject to the Common Auction Conditions and Special Conditions of Sale or Revised Special Conditions of Sale (as applicable) and may include the repayment of search and other fees and or costs payable by the buyer.
All buyers are advised to inspect all available legal documentation prior to bidding and will be deemed to fully understand what they may be liable for if they are successful in purchasing. This should also include Stamp Duty, Land Registry fees and VAT which may become payable on completion in line with any property transaction, whether it is by auction or private treaty. If, as a buyer, you are in doubt you should seek advice from your own professional advisors. For more information on fees please go to Buyers Fees










